Máquina de ensayos universal servohidráulica, de un espacio y con agarre de cuña
Esta máquina de ensayo universal HUT-D utiliza un diseño de actuador de montaje superior, lo que permite que un cilindro diferencial de doble acción realice ensayos de tracción y compresión en un mismo espacio de prueba. Un bastidor de carga sin holgura y un actuador con posicionamiento vertical ajustable proporcionan una configuración flexible del espacio de prueba y garantizan estabilidad a largo plazo en condiciones de prueba exigentes. Diseñada principalmente para ensayos de tracción de materiales metálicos, la serie HUT-D permite un control de lazo cerrado de fuerza, desplazamiento y deformación, con transiciones fluidas entre los modos de control. El software calcula automáticamente los resultados de las pruebas y puede imprimirlos o exportarlos en múltiples formatos.
Varillas de refuerzo, componentes soldados, piezas fundidas, fijaciones, cadenas, etc.
- ISO 7500-1, ISO 9513, ISO6892, ISO 15630, ISO 15835, BS 4449, ASTM E8, ASTM E 83, ASTM E4, ASTM A370, ASTM A416
Diseño energéticamente eficiente y ecológico
En comparación con la generación anterior, la nueva serie HUT-D ofrece importantes mejoras de rendimiento:
- 15% de reducción de ruido
- 74% de reducción de consumo de energía durante las pruebas
- 8%-29% de reducción de espacio, según el tamaño del modelo
Bastidor de carga de alta rigidez
La rigidez del bastidor se ha incrementado entre un 120% y un 188% en comparación con la generación anterior. Esto mejora la precisión de la medición y reduce la vibración de la máquina durante las pruebas.
Alta velocidad, alta eficiencia y fácil operación
La unidad de potencia hidráulica mejorada y el diseño optimizado de las tuberías aumentan la velocidad de funcionamiento sin carga y la eficiencia general de las pruebas. La PC con pantalla táctil integrada opcional proporciona un control intuitivo de la máquina y una configuración rápida de las pruebas.
Sistema de interacción visual inteligente
Un indicador de estado inteligente de cuatro colores (compatible con la norma IEC 60073) proporciona información visual clara sobre el estado de la máquina. Este sistema de señalización intuitivo ayuda a los operadores a evitar acciones indebidas y mejora la seguridad y la eficiencia operativa general.
Controlador de mando (handset) inteligente
El nuevo mando o Handset V3.0 cuenta con una pantalla táctil de alta resolución de 3.5 pulgadas que muestra la carga en tiempo real, la posición del travesaño, el estado de la máquina y el estado de la empuñadura. La interfaz táctil permite a los usuarios activar el servosistema directamente.
La rueda de desplazamiento permite la activación del servo y permite cambiar rápidamente de idioma. Las teclas de función dedicadas controlan la apertura y el cierre de la empuñadura y permiten un rápido retorno a la posición inicial predefinida.
- Control de rueda de ajuste fino
- Control de apertura/cierre de la empuñadura
- Función de protección de la muestra
- Inicio/parada de la prueba
- Control de subida/bajada del cabezal
- Retorno a la posición inicial
- Memoria de la posición inicial
| Modelo | HUT605D | ||||
| Capacidad,kN | 300 | 600 | 1000 | 2000 | |
| Precisión medida | Clase 0.5 | ||||
| Precisión de carga | ±0.5% de la lectura, hasta el 1% de la capacidad de la celda de carga | ||||
| Resolución de carga | 1/600,000FS | ||||
| Tasa de carga, FS/s | 0.02% -2% | ||||
| Precisión de la posición | ±0.5% o 0.13mm, lo que sea mayor | ||||
| Resolución de posición, mm | 0.004 | ||||
| Precisión de la deformación | ±0.5 % de lectura hasta 2% del rango completo según extensómetro ASTM E83 clase B-1, B-2 o ISO 9513 clase 0.5 | ||||
| Resolución de tensiones | ± 1/600,000FS | ||||
| Rigidez, kN/mm | 520 | 700 | 950 | 1820 | |
| Velocidad ascendente, mm/min | 630 | 340 | 625 | 305 | |
| Velocidad de descenso, mm/min | 450 | 710 | 1400 | 650 | |
| Distancia entre columnas, mm | 520x 390 | 550x370 | 650x400 | 650x400 | |
| Distancia entre mordazas de tracción, mm H | 500 | 500 | 600 | 780 | |
| Espacio máximo de compresión, mm | 320 | 300 | 395 | 500 | |
| Diámetro de las probetas redondas, mm | ⌀5-⌀12 ⌀12-⌀22 | ⌀5-⌀12 ⌀12-⌀22 ⌀22-⌀32 | ⌀5-⌀12 ⌀12-⌀22 ⌀22-Ф32 ⌀32-⌀40 | ⌀5-⌀12 ⌀12-⌀22 ⌀22-⌀32 ⌀32-⌀50 | |
| Espesor de la muestra plana, mm | 2-13, 13-25 | 2-16, 16-30 | 2-25, 25-50 | 10-40, 40-70 | |
| Plato de compresión, mm | ⌀150 | ⌀150 | 200x200 | ⌀240 | |
| Recorrido del pistón, mm | 500 | 500 | 600 | 600 | |
| Potencia, kW | 4.5 | 4.5 | 12.5 | ||
| Suministro eléctrico | 380V±10%, 50Hz, trifásica | ||||
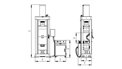
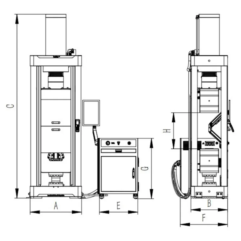
| Dimensiones, mm AxBxC | 600x470x2470 | 730x550x2700 | 870x620x3110 | 1100x800x4055 | |
| Peso de la máquina, kg | 1100 | 2000 | 4200 | 8500 | |
| Tamaño, mm ExFxG | 650x800x1010 | ||||
| Peso, kg | 260 | ||||
| Aceite | Aceite hidráulico #46, 108 litros | ||||
También ofrecemos gran variedad de accesorios para todo tipo de equipos de pruebas mecánicas.




